Karte
Karte Dresden

Direktsuche
Objekt-ID:

Merkzettel    Merkzettel drucken
 
Adresse: 01454 Dresden - Radeberg , Goetheweg
ID: 6399

Beschreibung:

Sehr schöne und außergewöhnliche Neubauvilla in ruhiger und grüner Traumlage von Großerkmannsdorf, einem Ortsteil von Radeberg, aber etwas näher an Dresden und in der Nähe vom Golfplatz Ullersdorf.

Achtung! Die äußere Hülle der Neubauvilla ist fertig und Garten und Grundstück sind nahezu komplett fertig angelegt, das Haus ist INNEN jedoch noch im Rohbauzustand und kann vom Erwerber nach eigenen farblichen und qualitativen Vorstellungen fertiggestellt werden. Daher resultiert auch der aktuell relativ günstige Kaufpreis.

Das Haus hat hat einen wundervollen Grundriss und große und helle Räume (die Innenwände sind bereits vorhanden), die Option für mehrere Bäder, eine große Terrasse mit schönem Garten und eine große Doppelgarage im Haus.

Weitere Informationen und Besichtigungen gerne auf Anfrage.


Hausansicht
Hausansicht
 

Einfahrt zur Tiefgarage
Einfahrt zur Tiefgarage

Hausansicht
Hausansicht
 

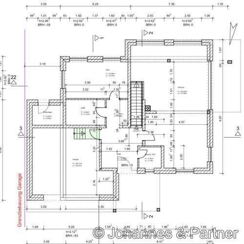
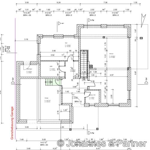
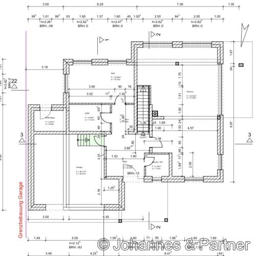
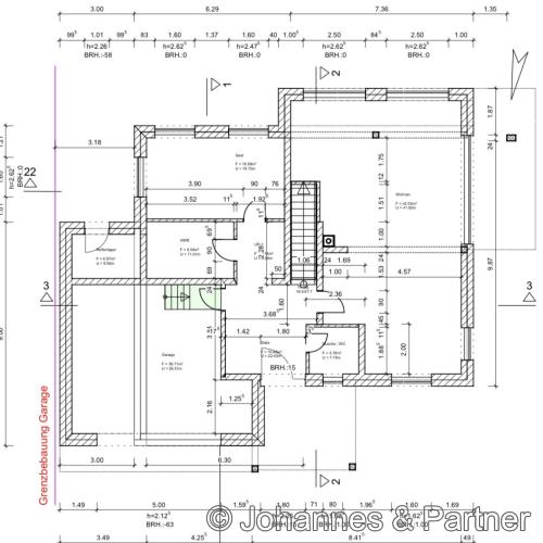
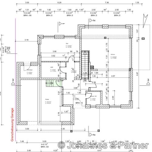
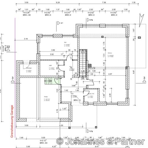
Grundriss Erdgeschoss
Grundriss Erdgeschoss

Grundriss Obergeschoss
Grundriss Obergeschoss
 

ruhige und grüner Traumlage am Rand eines Naturschutzgebietes
ruhige und grüner Traumlage am Rand eines Naturschutzgebietes

Blick aus dem Obergeschoss des Hauses
Blick aus dem Obergeschoss des Hauses
 

Hausansicht aus dem Garten
Hausansicht aus dem Garten

Hausansicht
Hausansicht
 


Exposé ist nur zur Information für Interessenten. Eine Weiterverwendung durch Dritte bedarf der vorherigen Genehmigung. In diesem Angebot enthaltene Angaben, Abmessungen und Preise beruhen auf Informationen der Auftraggeber (Eigentümer). Abweichungen sind möglich. Eine Haftung unsererseits ist ausgeschlossen. Zwischenzeitliche Vermietung/Verkauf vorbehalten.
Kontakt / Anfrage
Bei Fragen rufen Sie uns bitte an oder senden Sie uns eine Email. Wir werden uns schnellstmöglich bei Ihnen melden. Bitte hinterlassen Sie Ihre Telefonnummer!

Sie erreichen uns unter:
Tel.: +49 351 - 31 44 17 0 oder +49 174 - 304 5000.
Fax: +49 351 - 31 44 17 22
Email: info@dresdden.de

Ihr Name:
Ihre Email:
Ihre Tel.Nr.:
Nachricht:
 
Mit dem „Abschicken" dieses Kontaktformular stimme ich zu, dass meine Angaben aus dem Kontaktformular zur Beantwortung meiner Anfrage gemäß den Datenschutzbestimmungen von Johannes & Partner zu den dort beschriebenen Zwecken erhoben und verarbeitet werden. Ich habe die Datenschutzerklärung von Johannes & Partner zur Kenntnis genommen.
 
 
© Johannes & Partner Immobilienmakler 23 :40 Uhr | 20.02.2026