Karte
Karte Dresden

Direktsuche
Objekt-ID:

Merkzettel    Merkzettel drucken
 
Adresse: 01324 Dresden - Bühlau , Bautzner Landstraße 169
ID: 4808

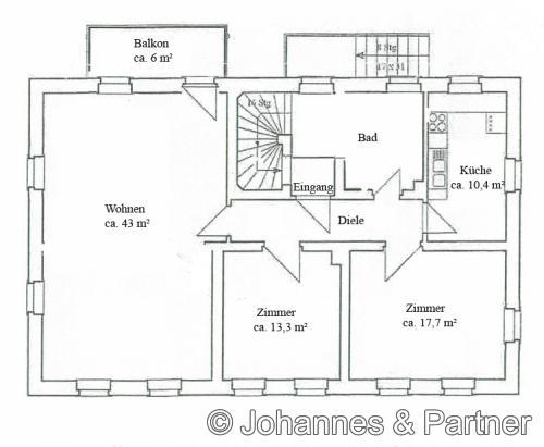
Beschreibung:

Schöne Dachgeschoss-Wohnung mit Balkon in zentraler Lage von Dresden-Bühlau mit
* großem, ca. 40 m² Wohnzimmer
* mit Balkon zur Hofseite
* Bad mit Fenster, Eckbadewanne, Dusche und WM-Anschluss
* Pkw-Stellplatz im Hof
* Keller

Angaben aus dem Energieausweis:

Baujahr: 1912/2007                    Objektzustand: gepflegt
Heizungsart: Zentralheizung       Befeuerungsart: Erdgas H
Energiebedarf: 77 kWh (m²*a)   Typ: Verbrauchsausweis
Energieeffizienzklasse: C


Hausansicht mit Balkon
Hausansicht mit Balkon
 


Ausblick vom Balkon
Ausblick vom Balkon
 

Balkon
Balkon

großes, helles Wohnzimmer
großes, helles Wohnzimmer
 

großes, helles Wohnzimmer mit Balkon
großes, helles Wohnzimmer mit Balkon

großes, helles Wohnzimmer
großes, helles Wohnzimmer
 

Zimmer
Zimmer

Flur mit angrenzenden Zimmern
Flur mit angrenzenden Zimmern
 

großzügige Küche
großzügige Küche

Bad mit Badewanne, Dusche und Fenster
Bad mit Badewanne, Dusche und Fenster
 


Hausansicht
Hausansicht
 


Exposé ist nur zur Information für Interessenten. Eine Weiterverwendung durch Dritte bedarf der vorherigen Genehmigung. In diesem Angebot enthaltene Angaben, Abmessungen und Preise beruhen auf Informationen der Auftraggeber (Eigentümer). Abweichungen sind möglich. Eine Haftung unsererseits ist ausgeschlossen. Zwischenzeitliche Vermietung/Verkauf vorbehalten.
Kontakt / Anfrage
Bei Fragen rufen Sie uns bitte an oder senden Sie uns eine Email. Wir werden uns schnellstmöglich bei Ihnen melden. Bitte hinterlassen Sie Ihre Telefonnummer!

Sie erreichen uns unter:
Tel.: +49 351 - 31 44 17 0 oder +49 174 - 304 5000.
Fax: +49 351 - 31 44 17 22
Email: info@dresdden.de

Ihr Name:
Ihre Email:
Ihre Tel.Nr.:
Nachricht:
 
Mit dem „Abschicken" dieses Kontaktformular stimme ich zu, dass meine Angaben aus dem Kontaktformular zur Beantwortung meiner Anfrage gemäß den Datenschutzbestimmungen von Johannes & Partner zu den dort beschriebenen Zwecken erhoben und verarbeitet werden. Ich habe die Datenschutzerklärung von Johannes & Partner zur Kenntnis genommen.
 
 
© Johannes & Partner Immobilienmakler 22 :34 Uhr | 15.04.2026