Objekt drucken Seite ausdrucken




Ihr Ansprechpartner: Herr Johannes Telefon: 0351 / 31 44 17 0 oder 0174 / 304 5000
 Gewerbe: 01277 Dresden - Gruna , Bärensteiner Straße 23-25
Objekt-ID: 5603

Beschreibung:

Die großzügige Gewerbefläche, geeignet für Büro, Lager, Akteneinlagerung, Versandhandel, Produktionsfläche etc., ist ausgestattet mit:

* Bodenbelag: Estrich, teilweise Fliesen - in Absprache Änderungen möglich
* hohe Traglast der Böden
* Lastenaufzug ebenerdig Traglast bis 1.000 kg bis zur Mietfläche
* Mietfläche ist auch unterteilbar
* Medien, Wasser, WC vorhanden
* Zentralheizung
* mehrere Stellplätze vorhanden
Energieausweis liegt zur Besichtigung vor.

Weitere Flächen im Objekt vorhanden.
Energieausweis liegt zur Besichtigung vor.




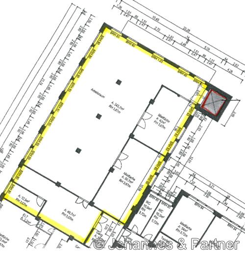
Grundriss





Exposé ist nur zur Information für Interessenten. Eine Weiterverwendung durch Dritte bedarf der vorherigen Genehmigung. In diesem Angebot enthaltene Angaben, Abmessungen und Preise beruhen auf Informationen der Auftraggeber (Eigentümer). Abweichungen sind möglich. Eine Haftung unsererseits ist ausgeschlossen. Zwischenzeitliche Vermietung/Verkauf vorbehalten.


Bürogemeinschaft Johannes & Partner - Loschwitzer Straße 21 - 01309 Dresden - Tel.: 0351 31 44 17 0